Trilocale in vendita

San Giuliano Milanese, Via Puccini - Borgolombardo
€ 195.000
3 locali 3 locali
87 Mq 87 Mq
1 bagno 1 bagno

Trilocale in vendita

San Giuliano Milanese, Via Puccini - Borgolombardo

Descrizione annuncio

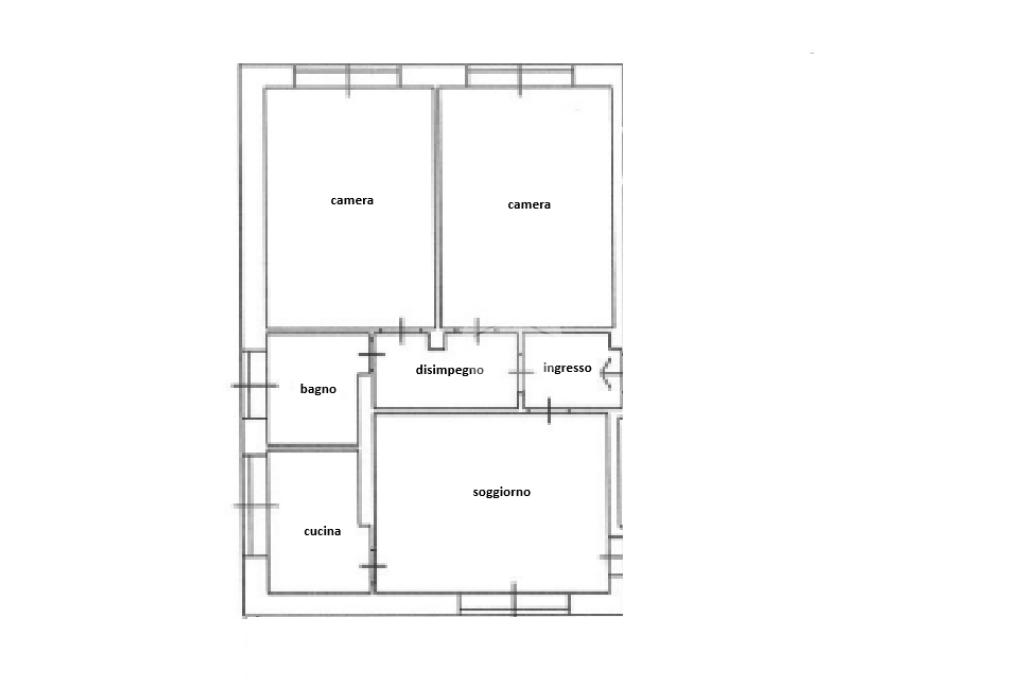
VIA PUCCINI 5, BORGOLOMBARDO - TRILOCALE RISTRUTTURATO

In stabile recentemente ristrutturato con Superbonus 110%, dotato di ascensore, proponiamo in vendita luminoso trilocale posto al 4° piano.

L’appartamento, completamente ristrutturato è così composto:

Ingresso su disimpegno

Ampia zona giorno con area relax e zona pranzo, con accesso al balcone verandato

Cucinotto separato

Due camere da letto spaziose

Bagno finestrato con box doccia

Dotazioni:

Riscaldamento centralizzato

Aria condizionata canalizzata

Soluzione ideale per chi cerca comfort, efficienza energetica e tranquillità, a pochi passi dai principali servizi e collegamenti.

L’appartamento si trova a Borgolombardo, tranquilla frazione del Comune di San Giuliano Milanese, caratterizzata da un ambiente residenziale curato e ben servito. La zona è ideale per famiglie e per chi desidera vivere in un contesto riservato ma comodo per i collegamenti con Milano e i comuni limitrofi.

Nelle immediate vicinanze si trovano negozi di prima necessità, scuole, aree verdi e impianti sportivi.
Ottima la viabilità: in pochi minuti si raggiungono la stazione ferroviaria di Borgolombardo (linea S1 Milano–Lodi), la Tangenziale Est e Ovest, oltre alle principali arterie stradali verso Milano.

Un quartiere in costante valorizzazione, grazie ai recenti interventi di riqualificazione urbana e all’ottima qualità della vita che offre.

Mostra tutto

Nelle vicinanze

Trasporto pubblico Trasporto pubblico
stazione di San Donato Milanese
stazione di San Donato Milanese
2,5 Km
Via Di Vittorio (Centro sportivo) (Certosa di San Donato)
Via Di Vittorio (Centro sportivo) (Certosa di San Donato)
260 m
Certosa di San Donato
Certosa di San Donato
310 m
stazione di Borgolombardo
stazione di Borgolombardo
330 m
stazione di San Giuliano Milanese
stazione di San Giuliano Milanese
1,4 Km
Ricariche auto elettriche Ricariche auto elettriche
OBI San Giuliano Milanese
1,6 Km
Eneldrive Piazza della Pieve
1,8 Km
Eneldrive Parcheggio del Comune
1,8 Km
IKEA S. Giuliano Mil.
1,9 Km
Eneldrive Torri Lombarde
2,0 Km
Scuole Scuole
Scuole
270 m
Scuola elementarre Martin Luther King
800 m
Scuola secondaria Don Milani
980 m
Scuola media Galileo Galilei
1,2 Km
Scuola Primaria “Guido Cavalcanti”
1,3 Km
Farmacia Farmacia
Farmacia Borgolombardo
60 m
Farmacia Pellegrini Dr. Luca
490 m
Serenella
800 m
Farmacia Comunale 1
810 m
Farmacia comunale 1
960 m
Ospedali Ospedali
Istituto Policlinico San Donato
1,1 Km
Supermercati Supermercati
Carrefour Market
740 m
Esselunga
1,9 Km
Simply Market
2,1 Km
Ipercoop
2,8 Km
Esselunga di San Giuliano Milanese
3,0 Km
Negozi Negozi
Eurospin
320 m
Mini market
340 m
Panificio Pugliese
720 m
Negozi
730 m
Banga Alimentari
760 m
Bar Bar
Anextesia
340 m
Quinta Pietra
2,0 Km
Bob Food and more
2,1 Km
Tely's
2,6 Km
Ristoranti Ristoranti
La Lanterna
60 m
Ristoranti
380 m
Pizza Kebap
760 m
Cinque Colonne
930 m
Washington
1,0 Km
Mostra tutto

Caratteristiche

Rif.:
61134427
Piano:
4 di 5 con ascensore (Piano medio)
Balconi:
1
Camere da letto:
2
Arredamento:
Assente
Condizionamento:
Autonomo
Mostra tutto
Prezzo Prezzo
€ 195.000
Rata mutuo Rata mutuo
€ 930 / mese
Spese annue Spese annue
€ 2.400
Proponi il tuo prezzoProponi il tuo prezzo

Classe Energetica

B
B
B
B
B
B
B
B
B
EP globale non rinnovabile:
100.00 kW h/m² anno
EP globale rinnovabile:
100.00 kW h/m² anno
EP invernale del fabbricato:
EP estiva del fabbricato:
Anno di costruzione:
1965
Riscaldamento:
Centralizzato
Tipo impianto:
A radiatori
Tipo alimentazione:
Altro

Ti interessa visionare l'immobile?

Fissa un appuntamento  Fissa un appuntamento

Richiedi informazioni

Clicca su Leggi per aprire l'informativa
* Questi campi sono obbligatori

Calcola il tuo mutuo

Semplice e senza impegno
Anticipo

( % )
Mutuo

( % )

pochi semplici passi

inserisci i tuoi dati
Questionario completato
Grazie per aver richiesto un appuntamento senza impegno con un nostro Consulente del Credito e Assicurativo.

Hai inserito correttamente tutti i dati necessari e a breve riceverai una e-mail con un link da convalidare per inviare i tuoi dati.
Affiliato
Studio San Giuliano Srl
Viale Fratelli Cervi, 19 20098 San Giuliano Milanese (MI)

Il nostro staff


  • Francesco Ferragina
    Responsabile

  • Nicolò Karol Macrina
    Collaboratore

  • Simone Palmitelli
    Collaboratore

  • Roberta Quaggia
    Coordinatrice
Viale Fratelli Cervi, 19 20098 San Giuliano Milanese (MI)
Zona: San Giuliano Milanese
Mostra su mappa
Affiliato
Studio San Giuliano Srl
Viale Fratelli Cervi, 19 20098 San Giuliano Milanese (MI)

2026 Tecnocasa Franchising S.p.A. - P. IVA 08365160152 - Via Monte Bianco 60/A 20089 Rozzano (MI). Ogni agenzia ha un proprio titolare ed è autonoma. Privacy policy | Policy utilizzo | Cookie policy